3D Visualisierung
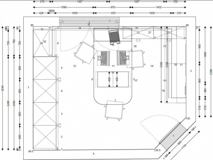
Es fällt Ihnen schwer, sich anhand eines Grundrisses etwas vorstellen zu können? Sie können sich, wenn Sie eine Skizze oder einen Plan sehen, nicht vorstellen, wie das in der Realität aussieht?
Dann sind Sie bei mir richtig! Eine ausführliche, fotorealistische Planung wird Ihnen hier weiterhelfen! Mithilfe einer 3D-Planung können Sie das neue Inventar sofort auf sich wirken lassen und gegebenenfalls werden Veränderungen gleich nach Ihren Wünschen vorgenommen.
Dann sind Sie bei mir richtig! Eine ausführliche, fotorealistische Planung wird Ihnen hier weiterhelfen! Mithilfe einer 3D-Planung können Sie das neue Inventar sofort auf sich wirken lassen und gegebenenfalls werden Veränderungen gleich nach Ihren Wünschen vorgenommen.
